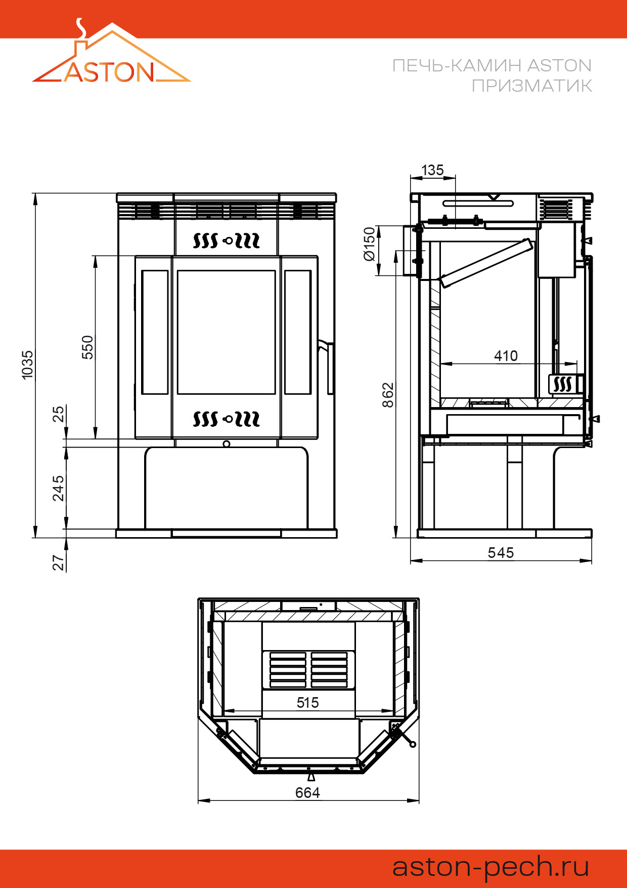
Описание
Печь-камин ASTON 12 кВт (200 м3) Призматик изготовлена из особо прочной котловой стали марки 09Г2С. Наиболее термонагруженные участки выполнены из нержавеющей стали марки AISI 430. Печь работает на дровах и рассчитана на пристенное размещение.Номинальная мощность печи – 12 кВт, что позволяет отапливать помещение объёмом до 200 м³.
Топка камина футерована вермикулитовыми плитами, которые защищают боковые стенки и дно топки от тепловой нагрузки. Во время топки вермикулит накапливает большое количество тепла, которое постепенно отдаёт в окружающее пространство. Это позволяет печи-камину дольше оставаться тёплым и поддерживать вокруг комфортную температуру.
Топка в горизонтальной проекции имеет форму призмы, что позволяет размещать дрова как вдоль, так и поперёк топочного пространства. Длина используемых дров – до 45 см.
На дне топочной камеры размещается чугунный колосник, через который подаётся воздух для горения.
Низ топки спереди ограничен пластиной для предотвращения выпадения дров и раскалённых углей из топочного пространства вперёд.
В верхней части топочной камеры размещён пламегаситель из нержавеющей стали. Эта металлическая пластина толщиной 2 мм изменяет направление дымовых газов и повышает эффективность сгорания дров в топке.
Над передним краем пламегасителя размещается П-образный профиль. Он дополнительно защищает самый термонапряжённый участок верхней панели топки от воздействия высокой температуры и прогорания.
На задней стенке топочной камеры расположен канал для подачи воздуха на вторичный дожиг. П-образный профиль из нержавеющей стали толщиной 2 мм проходит из поддувала в верхнюю часть топки.
Между «крышей» топки и верхней панелью печи есть свободное пространство. Оно служит для усиления конвекционных свойств печи и при этом снижает степень нагрева панели.
Снаружи печь отделана керамической плиткой. Для ускорения движения воздуха и прогрева помещения между облицовкой и корпусом печи устроены щелевидные конвекционные каналы.
Дверь оснащена верхней и нижней системами подачи воздуха: снизу воздух подаётся в поддувальное пространство, сверху – на внутреннюю поверхность стекла.
Патрубок дымохода диаметром 150 мм может быть установлен для вывода продуктов сгорания как на верхнюю панель, так и на заднюю стенку печи.






